









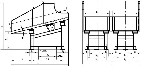
.jpg)
| 型号 | 技术特性 | 埋设参数 | ||||||||||
| 台面长度L(m) | 台面宽度B(m) | 台面倾角a(度) | 振动频率n(次/分) | 振幅A(mm) | 激振力P(N) | 功率N(kw) | 生产能力Q(t/h) | 重量G(kg) |
埋设深度LA(m) |
眉线高度ho()m |
眉线角Q(度) |
|
|
FZC1.6/1-1.5 |
1.6 |
1.0 |
12 |
1300 |
0.8 |
10000 |
1.5 |
300-360 |
440 |
0.6 |
0.6 |
40 |
|
FZC1.8/0.9-1.5 |
1.8 |
0.9 |
12 |
1300 |
0.9 |
10000 |
1.5 |
350-400 |
430 |
0.6 |
0.7 |
40 |
|
FZC2/0.8-1.5 |
2.0 |
0.8 |
14 |
1300 |
0.9 |
10000 |
1.5 |
310-370 |
490 |
0.6 |
0.7 |
38 |
|
FZC2.3/0.7-1.5 |
2.3 |
0.7 |
16 |
1300 |
0.8 |
10000 |
1.5 |
290-330 |
575 |
0.7 |
0.7 |
38 |
|
FZC2/1-3 |
2.0 |
1.0 |
14 |
890 |
3.0 |
20000 |
3.0 |
850-1000 |
690 |
0.7 |
0.7 |
40 |
|
FZC2.3/0.9-3 |
2.3 |
0.9 |
14 |
890 |
3.0 |
20000 |
3.0 |
770-910 |
870 |
0.8 |
0.8 |
40 |
|
FZC2.3/1.9-3 |
2.3 |
1.2 |
14 |
890 |
1.8 |
20000 |
3.0 |
630-760 |
960 |
0.8 |
0.8 |
40 |
|
FZC2.8/1-3 |
2.8 |
1 |
18 |
890 |
1.7 |
20000 |
3.0 |
580-690 |
1000 |
0.9 |
0.9 |
41 |
|
FZC2.3/1.2-4 |
2.3 |
1.2 |
14 |
1320 |
0.9 |
30000 |
4.0 |
630-730 |
1010 |
0.9 |
0.8 |
41 |
|
FZC2.5/1.2-3 |
2.5 |
1.2 |
16 |
890 |
1.7 |
20000 |
3.0 |
590-720 |
980 |
0.8 |
0.8 |
39 |
|
FZC3.1/1-3 |
3.1 |
1 |
18 |
890 |
1.7 |
20000 |
3.0 |
560-670 |
1060 |
0.8 |
0.9 |
38 |
|
FZC2.5/1.2-4 |
2.5 |
1.2 |
16 |
1320 |
0.9 |
30000 |
4.0 |
660-770 |
1030 |
0.8 |
0.9 |
41 |
|
FZC3.5/0.9-4 |
3.5 |
0.9 |
18 |
1320 |
1.0 |
30000 |
4.0 |
730-830 |
1130 |
0.9 |
1.0 |
37 |
|
FZC2.5/1.4-5.5 |
4.0 |
1.6 |
14 |
920 |
2.0 |
40000 |
5.5 |
990-1180 |
1360 |
0.9 |
0.9 |
41 |
|
FZC3.5/1-5.5 |
3.5 |
1.0 |
18 |
920 |
2.0 |
40000 |
5.5 |
980-1150 |
1525 |
1.1 |
1.1 |
40 |
|
FZC2.8/1.4-5.5 |
2.8 |
1.4 |
14 |
920 |
1.8 |
40000 |
5.5 |
900-1080 |
1460 |
1.0 |
1.0 |
41 |
|
FZC3.1/1.2-5.5 |
3.1 |
1.2 |
14 |
920 |
1.8 |
40000 |
5.5 |
910-1090 |
1515 |
1.1 |
1.1 |
40 |
|
FZC3.1/1.4-5.5 |
3.1 |
1.4 |
14 |
920 |
1.7 |
40000 |
5.5 |
920-1120 |
1600 |
1.0 |
1.1 |
39 |
|
FZC3.5/1.2-5.5 |
3.5 |
1.2 |
14 |
920 |
1.8 |
40000 |
5.5 |
870-1050 |
1670 |
1.0 |
1.1 |
36 |
|
FZC4.5/1-5.5 |
4.5 |
1.0 |
18 |
920 |
1.8 |
40000 |
5.5 |
830-980 |
2040 |
1.0 |
1.1 |
34 |
|
FZC3.1/1.4-7.5 |
3.1 |
1.4 |
14 |
920 |
2.0 |
50000 |
7.5 |
1260-1500 |
1875 |
1.1 |
1.1 |
40 |
|
FZC3.5/1.2-7.5 |
3.5 |
1.2 |
14 |
920 |
2.1 |
50000 |
7.5 |
1220-1440 |
1810 |
1.2 |
1.2 |
39 |
|
FZC4.5/1-7.5 |
4.5 |
1 |
18 |
920 |
2.0 |
50000 |
7.5 |
1290-1510 |
2225 |
1.2 |
1.4 |
39 |
|
FZC3.5/1.4-7.5 |
3.5 |
1.4 |
14 |
920 |
1.8 |
50000 |
7.5 |
1160-1380 |
2000 |
1.0 |
1.2 |
37 |
|
FZC4/1.2-7.5 |
4.0 |
1.2 |
18 |
920 |
1.6 |
50000 |
7.5 |
870-1040 |
1935 |
1.2 |
1.2 |
39 |
|
FZC4/1.6-11 |
4.0 |
1.6 |
16 |
920 |
1.8 |
75000 |
11 |
1570×1870 |
2355 |
1.2 |
1.4 |
40 |
|
FZC3.1/1×2-4×2 |
3.1 |
1.0×2 |
18 |
1320 |
1.0 |
30000×2 |
4.0×2 |
1500×1740 |
2220 |
0.9 |
0.9 |
38 |
|
FZC3.5/1×2-5.5×2 |
3.5 |
1.0×2 |
18 |
920 |
2.0 |
40000×2 |
5.5×2 |
1960×2300 |
3050 |
1.1 |
1.1 |
40 |
|
FZC3.1/1.2×2-5.5×2 |
3.1 |
1.2×2 |
14 |
920 |
1.8 |
40000×2 |
5.5×2 |
1820×3180 |
3030 |
1.1 |
1.1 |
40 |
|
FZC3.5/1.2×2-5.5×2 |
3.5 |
1.2×2 |
14 |
920 |
1.8 |
40000×2 |
5.5×2 |
1740×2160 |
3310 |
1.0 |
1.1 |
36 |
|
FZC4/1.2×2-7.5×2 |
4.0 |
1.2×2 |
18 |
920 |
1.6 |
50000×2 |
7.5×2 |
1740-2080 |
3870 |
1.2 |
1.2 |
39 |








